Información
Una vivienda de dos plantas con sótano diseñada en exclusiva para el propietario por los arquitectos Cristóbal Miró y Antonio Pozo.
Así se contempla este proyecto a medida Córdoba, que combina la robustez y garantía del hormigón prefabricado con la versatilidad de los espacios abiertos, cumpliendo con las más altas expectativas de diseño en el espacio, y calidad en los materiales y acabados.
Los elementos de hormigón volados, se dibujan como líneas que definen su forma y que recorren ambas plantas convirtiéndola en una geometría variable, propia de una casa moderna y atemporal.
Detalles
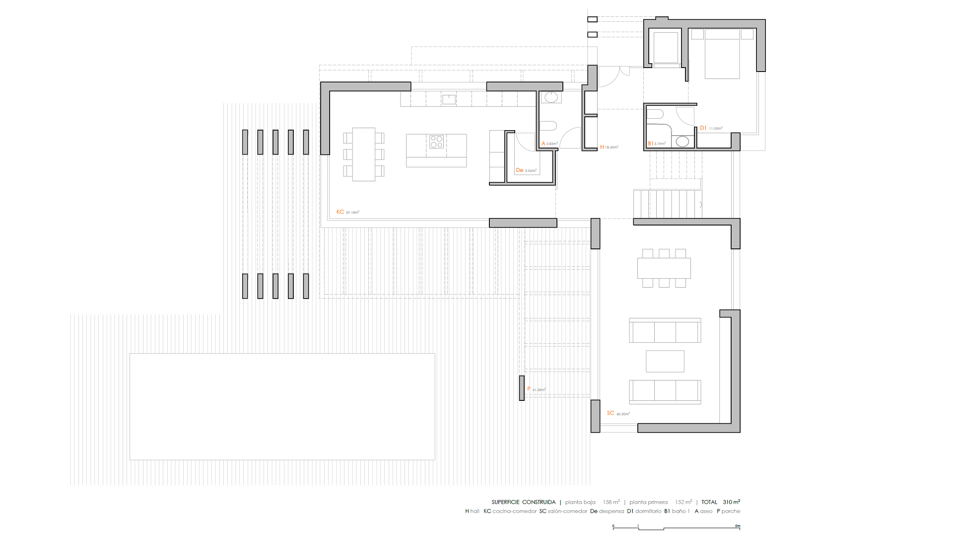
La casa prefabricada de hormigón del proyecto a medida Córdoba, combina grandes espacios de alta calidad donde el salón comedor y la cocina comparten vistas al jardín. En este caso el salón se planteó como una gran estancia de estar, incorporando a la cocina la zona de comedor, convirtiéndola así en el corazón principal de la casa donde compartir los momentos cotidianos del día a día.
Una estancia adicional en planta baja con un baño completo, redondea el programa de la planta baja y añade versatilidad funcional a la casa.
Completan el programa en la planta superior una suite principal, con vestidor y un amplio baño, y dos dormitorios dobles, que comparten un baño completo
En el sótano se generó un espacio semicerrado donde ubicar los vehículos, una gran sala adicional de reuniones para los amigos, una vinoteca y espacios servidores donde emplazar las instalaciones.
A nivel de instalaciones, esta vivienda cuenta con aerotermia, geotermia, e instalación de placas solares fotovoltaicas, convirtiéndola en una casa que suministra el sobrante de su energía a la red eléctrica, dado su alto aislamiento y eficiencia de sus componentes.
En el jardín, una gran piscina rectangular de gres porcelánico desbordante por uno de sus lados, permite recibir a los habitantes de la casa con una hermosa cascada, aprovechando los desniveles de la parcela.
Superficie útil
| SUPERFICIE PLANTA BAJA | |||
| Hall | 18,60 | m2 | |
| Cocina | 39,18 | m2 | |
| Salón comedor | 40,30 | m2 | |
| Despensa | 3,06 | m2 | |
| Dormitorio 1 | 11,53 | m2 | |
| Baño 1 | 3,19 | m2 | |
| Aseo | 3,83 | m2 | |
| Porche | 41,08 | m2 | |
| Total útiles | 160,77 | m2 | |
| SUPERFICIE PLANTA PRIMERA | |||
| Dormitorio principal | 19,37 | m2 | |
| Baño principal | 10,73 | m2 | |
| Vestidor | 9,60 | m2 | |
| Dormitorio 2 | 17,01 | m2 | |
| Baño 2 | 6,69 | m2 | |
| Dormitorio 3 | 11,99 | m2 | |
| Baño 3 | 5,33 | m2 | |
| Distribuidor | 22,23 | m2 | |
| Lavadero | 7,31 | m2 | |
| Terraza exterior | 5,16 | m2 | |
| Total útiles | 115,42 | m2 | |
| SUPERFICIE TOTAL CONSTRUIDA | 310,00 | m2 | |



